查看: 8596|回覆: 13
收起左側

[討論] 視聽室空間吸音棉的擺設位置

[複製連結]

發表於 2013-2-28 15:50:25 | 顯示全部樓層 |閱讀模式

馬上註冊,結交更多好友,享用更多功能,讓你輕鬆玩轉社區。

您需要 登錄 才可以下載或查看,沒有賬號?註冊

x
請教各位,前吸音後擴散,這個大家都知道,但是一個獨立視聽室空間裡,要怎樣的擺設吸音棉及擴散板呢?


 樓主| 發表於 2013-2-28 17:43:03 | 顯示全部樓層
稍後附上平面圖,

評分

參與人數 1名聲 +5 收起 理由
sam + 5 資料越詳細越好

查看全部評分

回覆

使用道具 舉報


發表於 2013-2-28 18:04:44 | 顯示全部樓層
要擺任何的調音道具之前先檢視一下您的器材及聲音!
是否有須要放這些東西。
回覆

使用道具 舉報


發表於 2013-2-28 20:23:04 | 顯示全部樓層
要擺吸音棉或擴散板前~
至少要經過一些簡單的頻譜跟RTA量測~
隨便擺只是用猜的而以~
回覆

使用道具 舉報


發表於 2013-2-28 22:00:39 | 顯示全部樓層
本文章最後由 雷奧 於 2013-2-28 22:08 編輯

簡易的吸音和擴散的部份 小弟提供一點心得
以密閉空間而論 空間為一六面體
揚聲器如果太靠近 背牆 可先進行 吸音的動作減少過強的反射聲波

再利用 第一反射點的測量方式, 來找到要做吸音材的位置
作法 找一面稍大的鏡子 穿衣鏡更適合(因為可以一人操作)
鏡子在側牆上移動 一人坐於聆聽位置上 ,看到側牆上鏡中有映照出揚聲器(左牆看右 右牆看左)
即為 第一反射點。
在以空間的格局 大小 揚聲器和牆面(包含材質工法)距離 調性 和器材的聲底特性
再進行吸音或是擴散的方式 和擴散器材的面積大小 和吸音材質。



回覆

使用道具 舉報


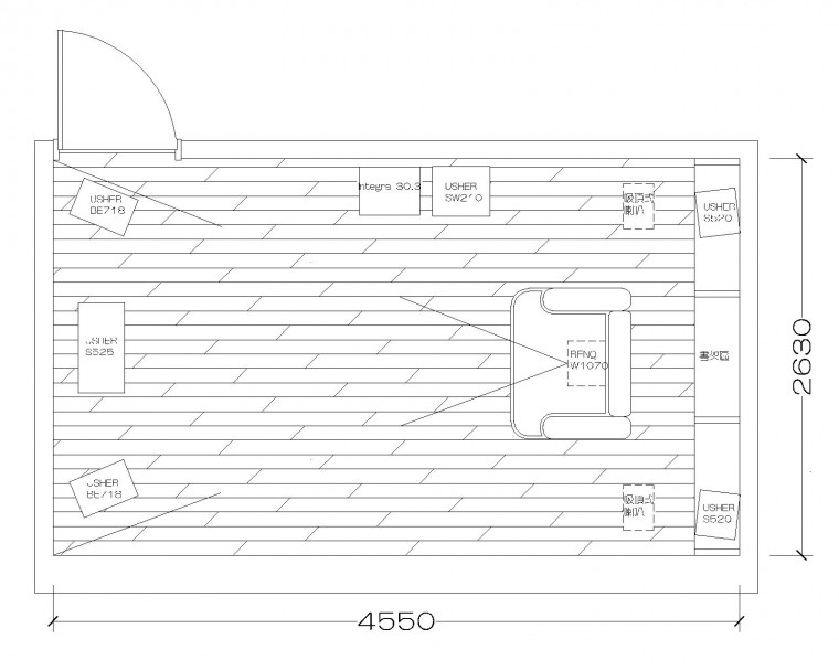
 樓主| 發表於 2013-2-28 23:03:29 | 顯示全部樓層
李公館1020228.jpg
撥放器為ASUS BD-500
回覆

使用道具 舉報


發表於 2013-3-2 14:28:52 | 顯示全部樓層
沒窗戶嗎?
回覆

使用道具 舉報


發表於 2013-3-2 15:38:46 | 顯示全部樓層
開版大感謝您分享空間!
開版大想要改善空間中聲音的何種問題?
回覆

使用道具 舉報


 樓主| 發表於 2013-3-2 16:01:47 | 顯示全部樓層
kgv111 發表於 2013-3-2 14:28
沒窗戶嗎?

是的,沒窗戶
回覆

使用道具 舉報


 樓主| 發表於 2013-3-2 16:04:56 | 顯示全部樓層
小許 發表於 2013-3-2 15:38
開版大感謝您分享空間!
開版大想要改善空間中聲音的何種問題?

不客氣,
主要是感覺聽音樂時,沒有真實感,跟雅瑟的視聽室比好像差很多。
回覆

使用道具 舉報


發表於 2013-3-2 16:55:55 | 顯示全部樓層
th429 發表於 2013-3-2 16:04
不客氣,
主要是感覺聽音樂時,沒有真實感,跟雅瑟的視聽室比好像差很多。 ...

這樣子的回覆!我不知道該怎麼接~~有沒有具體一點的答案?
回覆

使用道具 舉報


發表於 2013-3-2 18:20:32 | 顯示全部樓層
前吸音後擴散也不是一成不變的真裡,還是要看空間與器材的交互作用決定。

左右側牆第一反射點的吸音反而比較重要,若能做的話先施作吧....
回覆

使用道具 舉報


發表於 2013-3-7 12:53:48 | 顯示全部樓層
回覆

使用道具 舉報

您需要登錄後才可以回文 登入 | 註冊

本版積分規則

熱門推薦

MadVR Labs 全新體驗中心 —— 與 StormAudio 攜手打造「家庭劇院的終極巔峰」
MadVR Labs 全新體驗中心
MadVR Labs 全新體驗中心 —— 與 StormAudio 攜手打造「家庭劇
風暴EVO AoIP/帝瓦雷Phantom 7.0.4金蛋客廳劇院建構歷程心得  - 發燒友Phil Lee分享
風暴EVO AoIP/帝瓦雷Phant
風暴EVO AoIP/帝瓦雷Phantom 7.0.4金蛋客廳劇院建構歷程心得 -
南臺灣藝文之都的B&W Nautilus鸚鵡螺/StormAudio風暴7.2.1.6多聲道視聽室開箱!
南臺灣藝文之都的B&W Naut
南臺灣藝文之都的B&W Nautilus鸚鵡螺/StormAudio風暴7.2.1.6多聲
25年專業劇院路終遇驚喜美麗新天地 - 新店李師傅Storm Audio風暴Core16客廳5.4.6開箱!
25年專業劇院路終遇驚喜美
25年專業劇院路終遇驚喜美麗新天地 - 新店李師傅Storm Audio風暴
當英倫貴族遇上法國大腦與美式肌肉:Tannoy Dimension 經典重生記
當英倫貴族遇上法國大腦與
當英倫貴族遇上法國大腦與美式肌肉:Tannoy Dimension 經典重生

聯絡我們| 問題反映| 小黑屋| 手機版| Archiver|  本網站特別聘請 蔡家豪律師 為本站法律顧問

快速回覆 返回頂部 返回列表