查看: 7509|回覆: 8
收起左側

hile的小客廳劇院與影音之路

[複製連結]

發表於 2010-11-5 10:05:31 | 顯示全部樓層 |閱讀模式

馬上註冊,結交更多好友,享用更多功能,讓你輕鬆玩轉社區。

您需要 登錄 才可以下載或查看,沒有賬號?註冊

x
前言:
小弟是劇院/影音超新手,
2010.8月之前對這個世界幾乎完全沒有概念,
趁著結婚前,家裡舊屋翻修的機會才有了架構劇院的想法,
這段期間爬了很多文 mobile01/HD CLUB/MYAV/i-PK等等~
總算對於自己的劇院有了初步的規劃。
--------------------------------------------------------------
2010.9月
在還沒任何概念的情形下,
初次踏入居住城市的音響店,
原本的想法只是裝一套5.1聲道的音響,
預算約5萬。
店家給的組合如下:(三件式,議價前報價49.9k)
1.擴大機:Sony DTR-DH710
   喇   叭  : Jamo S426HCS3
   藍光機:Sony BDP-S370

店家也推薦另一套ELAC的劇院組,因超出預算故不考慮^^"
現場聽了該組合的效果,覺得很棒~
不過我的判斷並不客觀,畢竟這是我聽的第一套5.1聲道,
跟以前的電腦喇叭相比,當然很棒囉 @@"
---------------------------------------------------------------
回家後經過一段時間的網路爬文、比價,
初步心得是該組合符合我的需求,
在網路上查到的價格,也是大部分店家都有志一同的這個報價。
再帶過家人第二次到訪該音響店後,
本來已經要決定這樣的規格了........待續

評分

參與人數 1名聲 +2 精幣 +2 收起 理由
kuen1972 + 2 + 2 很詳細的敗家過程

查看全部評分


 樓主| 發表於 2010-11-5 10:22:08 | 顯示全部樓層
本文章最後由 hile 於 2010-11-5 10:23 編輯

為了排版乾淨,所以我想還是把文章分段寫 ^^"
--------------------------------------------------
加入投影機的想法:
前段提到5.1聲道已經大致抵定了,
但是在爬文的同時,
看到許多大大裝設劇院投影機,
開始有些心動了  ^^
首先先上網看看想要的規格/機型。
以1080P為原則,初步鎖定,
奧圖碼HD20/Benq W1000
後來考慮到家人可能會看到彩虹現象所以改以3LCD機型為優先,
於是改為看
EPSON TW2900/TW3500
---------------------------------------------------
查過EPSON相關產品的報價
TW2900 53K左右
TW3500 63K最低價

其間也考慮過平行輸入的
TW3500(美規8100) 49K左右
TW4500(美規8500) 69K左右
----------------------------------------------------
機型大致確定,接下來就是要放在哪的問題了
1.書房
四樓後書房平面.JPG
2.客廳
客廳劇院初版.JPG
回覆

使用道具 舉報


發表於 2010-11-5 10:34:58 | 顯示全部樓層
是已經裝潢完成
在描述過程及分享心得
還是仍在規劃設計中?
回覆

使用道具 舉報


 樓主| 發表於 2010-11-5 10:45:48 | 顯示全部樓層
上篇圖片貼上來好像有點大,不知道怎麼縮小 @@"
-------------------------------------------------------------
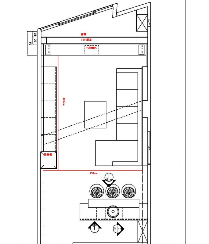
由於不管是書房或客廳,
可用面寬大概都只有350cm左右,
以原先考量的TW3500來看,
投影尺吋大概100~115吋,
考量觀看距離及裝潢包牆的厚度,
應該是以100寸為最佳選擇。
但是說真的,總是想說竟然要裝投影機了,
當然是投越大越好囉~
--------------------------------------------------------------
就在此時發現了lan621014大的 "小客廳也可以很劇院"文章
發覺我也可以如法炮製,把投影機/5.1聲道等全都移到客廳長的那面,
這樣應該會更理想  ^^
--------------------------------------------------------------
2010.10月
在板上發現了10月底台中音響展的訊息,(小弟家住中部)
當下決定去開開眼界,
順便看看小弟目前的組合在展覽上有沒有優惠價等等^^
後來10/24參觀音響展的過程在小弟覺得合理的價格範圍下,
就訂下小弟的視聽器材了~待續
回覆

使用道具 舉報


 樓主| 發表於 2010-11-5 11:38:13 | 顯示全部樓層
本文章最後由 hile 於 2010-11-5 11:49 編輯

我想看展的過程就省略下來~
我直接把看展前計畫的器材清單/預算,及最後確定的器材列表比較吧 ^^
看展前 最後底定
投影機TW3500=63K TW3500
螢幕Elite125H=12.8K Elite125H
擴大機Sony DH710=49K DN1010
喇叭5.1Jamo 426Jamo 606
藍光播放Sony S370
重低音HD SW12+
後環繞台製


看展前預估預算約125K,
由於投影機及螢幕價格是網路上找的單購價,
預計線材施工5K,總預算是130K,
不過我覺得一開始音響店的劇院組合應該還有議價空間,
姑且算所有器材含安裝都由最初的店家全包,
相信殺到120K應該沒問題 ^^
---------------------------------------------------
最後底定的器材
擴大機升級 DN1010
喇叭升級 同品牌 606
新增重低音 HD SW12+
新增後環繞 台製 (變7.1聲道)
捨棄藍光播放器 S370
最後價格含線材安裝 135K
---------------------------------------------------
器材都訂好了,
接下來就是客廳裝潢擺設的修改了 ^^
客廳架高修改後.JPG
這是初步請設計師修改後的圖,
下星期木工就會進來了,
等到裝修完成(約12月底),
再拍照與大家分享 ^^
-----------------------------------------------
回dean222大大
裝潢仍是現在進行式,預計今年年底完成,
基於小弟婚期在100年農曆年前,再加上長方型的房子,
說真的也比較難有其他規劃,所以以裝潢不做太大變動為優先。
還請各位大大如有相關建議,能不吝指教,給小弟做個參考 ^^
回覆

使用道具 舉報


發表於 2010-11-5 13:16:31 | 顯示全部樓層
我也覺得轉90度比較好
倒不是考慮銀幕大小(其實100吋也很大了)
而是長方形的空間,聲音的音場表現會比較好
(如果擺短邊,側環繞不好安裝,還有左邊為開放式空間反射沒了...等不利因素)

通常劇院擺客廳的不利因素有2個:
第一是開放式空間,聲音的反射不平衡,包圍感受影響
第二是遮光的問題
回覆

使用道具 舉報


 樓主| 發表於 2010-11-5 14:58:22 | 顯示全部樓層
回kuen大
小弟新手一枚,
說真的當初想要轉90度,
只是單純想到銀幕要放大的問題,
經大大提醒才發現這樣對聲音音場的表現也有幫助,
讓小弟又上了一課~^ ^

遮光的部分,
目前預計是銀幕後方及右側小窗都會裝上雙層窗簾,
但是畢竟要兼具明亮的客廳與遮光完全的視聽室並不容易,
單就天花板及修飾壁面(目前預計白色系)的反光就很難避免了,
所以也只能先驅就目前的空間囉^^"
回覆

使用道具 舉報


發表於 2010-11-6 00:24:56 | 顯示全部樓層
這篇文章建議請管理員移至「家庭劇院設計」的分區會比較適合喔。
hile網友也可至「家庭劇院設計」看看,目前有些相關文章與討論也是客廳裝潢/音響室施工等等的文章,相信會對於您目前要進行的作業方面會有一些幫助。
回覆

使用道具 舉報


發表於 2010-11-7 07:15:29 | 顯示全部樓層
恭禧樓主能為自已打造音響室!
不過~距離只有3米55
扣掉沙潑
布幕離牆
所省可能僅3米~
打80吋以上,
看起來都會很吃力~!
樓主要有心裡準備。
回覆

使用道具 舉報

您需要登錄後才可以回文 登入 | 註冊

本版積分規則

熱門推薦

床上劇院掰掰~小小獨立視聽室啟用
床上劇院掰掰~小小獨立視
本文章最後由 tom3050 於 2016-3-25 12:06 編輯 2016/3/25更
Storm Audio風暴最新推出8聲道AoIP/XLR數位類比雙生輸入後級擴大機
Storm Audio風暴最新推出8
Storm Audio風暴最新推出8聲道AoIP/XLR數位類比雙生輸入後級擴大
以StormAudio風暴 Elite 32 Digital AoIP打造中國首座AES67/Dante AoIP 架構的全數位 32 聲道家庭劇院
以StormAudio風暴 Elite 3
以StormAudio風暴 Elite 32 Digital AoIP打造中國首座AES67/Dan
這支是史上最美揚聲器?Starke Sound Halo C2 中置揚聲器開箱-Part.1
這支是史上最美揚聲器?St
這支是史上最美揚聲器?Starke Sound Halo C2 中置揚聲器開箱-
25年專業劇院路終遇驚喜美麗新天地 - 新店李師傅Storm Audio風暴Core16客廳5.4.6開箱!
25年專業劇院路終遇驚喜美
25年專業劇院路終遇驚喜美麗新天地 - 新店李師傅Storm Audio風暴

聯絡我們| 問題反映| 小黑屋| 手機版| Archiver|  本網站特別聘請 蔡家豪律師 為本站法律顧問

快速回覆 返回頂部 返回列表