查看: 15099|回覆: 9
收起左側

[求助] 新手求助7.1聲道之喇叭位置

[複製連結]

發表於 2011-2-22 23:45:07 | 顯示全部樓層 |閱讀模式

馬上註冊,結交更多好友,享用更多功能,讓你輕鬆玩轉社區。

您需要 登錄 才可以下載或查看,沒有賬號?註冊

x
本文章最後由 kaku217 於 2011-2-23 01:16 編輯

小弟由於家裡快裝潢完了想請教各位前輩7.1聲道喇叭的擺法,小弟的客廳由於沙發靠牆,環繞喇叭用崁頂式的,目前AV AMP規劃Integra 30.2 ,主喇叭與中置用USHER DMD的喇叭,但小弟家裡還有一對S520已經鑽孔吊在天花板上,想跟各位前輩請教這對S520要怎麼擺比較好(或者換小一點的環繞喇叭),是擺front high還是上腳架擺沙發兩側或是吊在沙發兩側,小弟新居客廳沙發背牆至電視牆4m,天花板下2.7m前後間接照明,沙發右方為開放式餐廳,再煩請各位前輩給小弟建議,感激不盡

客廳.jpg

發表於 2011-2-23 00:07:46 | 顯示全部樓層
本文章最後由 泡泡 於 2011-2-23 00:09 編輯

先來貼幾張在板上有分享到的DTS標準喇叭擺位圖....

大家再來討論樓主的空間該怎樣擺設....
1 7.1 Speaker Layout Traditional.jpg
2 7.1 Speaker Layout Full Rear Surround.jpg
3 7.1 Speaker Layout Side High.jpg
4 7.1 Speaker Layout Front Wide.jpg
5 7.1 Speaker Layout Front High.jpg
5.1喇叭的擺設方式.jpg
6 7.1 Speaker Layout Center Over-Head.jpg
7 7.1 Speaker Layout Center High.jpg
8 6.1 Speaker Layout Center Surround.jpg

評分

參與人數 2名聲 +22 精幣 +22 收起 理由
發哥 + 2 + 2 熱心助人
sam + 20 + 20 熱心助人

查看全部評分

回覆

使用道具 舉報


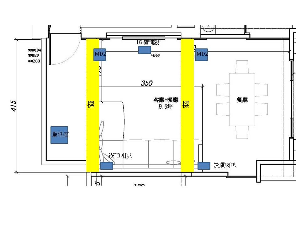
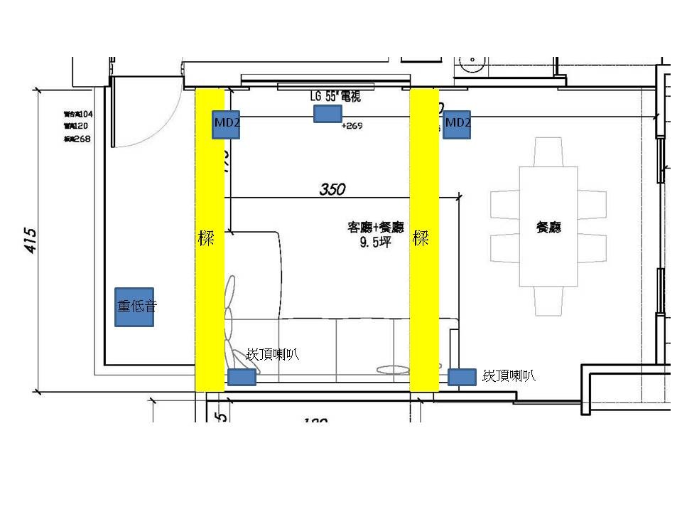
 樓主| 發表於 2011-2-23 01:11:24 | 顯示全部樓層
抱歉小弟不大會貼圖剛把圖補上去了,另外在電視兩側的櫃子有垂直的線代表天花板的樑,這個量是否會影響到front high的喇叭高度
回覆

使用道具 舉報


 樓主| 發表於 2011-2-23 01:31:31 | 顯示全部樓層
本文章最後由 kaku217 於 2011-2-23 01:34 編輯

抱歉,小弟把圖稍微修改一下這樣看可能比較清楚 ,客廳家餐廳後來有修改過大約11坪

客廳喇叭.jpg
回覆

使用道具 舉報


發表於 2011-2-23 08:08:03 | 顯示全部樓層
我的感覺是不太需要7.1聲道
因為樓主的客廳雖然看似有11坪
實際影音空間才4、5坪而已(3.5×4.15 m^2)
因為跟我的視聽室幾乎一樣大(3.5×4.5m^2)
我也是用5.1聲道而已
若是照DTS的擺法,加上沙發已經靠牆了
後面四顆喇叭彼此間的距離我覺得會太近
加上開放式空間,沙發左右兩側不方便擺喇叭
沒必要為了7.1聲道犧牲居住方便性
但這樣的空間有個好處是獨立視聽室比不上的
寬度夠大可以讓超低音產生頻率夠低的極低頻
但也因為空間大,所以低音要夠力才行(但這有錢就能解決)
實在很讓人羨慕(空間太小就不是幾萬能夠解決的事了...)
而front high的話,我沒有試過
不過有兩點提供樓主參考一下
第一是電視牆上面吊兩個喇叭的視覺觀感如何?
(內人是室內設計的教師,覺得這樣會破壞整體美觀)
第二是Hi Vi雜誌上有提過front high並不是所有影片類型皆適用
有些(例如演奏會)反而會造成音場混亂
而且樓主還有降天花板,不知會不會有影響
S520是書架型,樓主不妨就讓他吊掛當環繞聲道
這樣就可以不用買崁頂喇叭了
預算可以移到超低音上
小弟的一點建議
(不過小弟也只是入門者,僅能提供您參考)

評分

參與人數 2名聲 +12 精幣 +12 收起 理由
泡泡 + 2 + 2 熱心助人
sam + 10 + 10 熱心助人

查看全部評分

回覆

使用道具 舉報


發表於 2011-2-23 09:52:24 | 顯示全部樓層
如果是我的話
7.1聲道會多2顆放前面Front High
前面泡泡兄的貼圖已經有了
位置就是主聲道的垂直延伸的上方位置
(PS.有關上方音場噁能不適合演唱會...等,
應該不是考量因素,因為可以選擇其他音場模式)

另一個思考點就是左右側環繞吊掛在左右梁柱看看
回覆

使用道具 舉報


發表於 2011-10-6 04:03:38 | 顯示全部樓層
超專業回復^^

評分

參與人數 1名聲 -9 精幣 -9 收起 理由
toshinko -9 -9 超專業灌水

查看全部評分

回覆

使用道具 舉報


發表於 2011-10-17 17:25:10 | 顯示全部樓層
看到裝潢完我的心就冷一半了,如果將來還有機會,這個問題要在裝潢前就問了,現在問能改的已經很有限了,基本上就是定案了。
回覆

使用道具 舉報

您需要登錄後才可以回文 登入 | 註冊

本版積分規則

熱門推薦

南臺灣藝文之都的B&W Nautilus鸚鵡螺/StormAudio風暴7.2.1.6多聲道視聽室開箱!
南臺灣藝文之都的B&W Naut
南臺灣藝文之都的B&W Nautilus鸚鵡螺/StormAudio風暴7.2.1.6多聲
25年專業劇院路終遇驚喜美麗新天地 - 新店李師傅Storm Audio風暴Core16客廳5.4.6開箱!
25年專業劇院路終遇驚喜美
25年專業劇院路終遇驚喜美麗新天地 - 新店李師傅Storm Audio風暴
當英倫貴族遇上法國大腦與美式肌肉:Tannoy Dimension 經典重生記
當英倫貴族遇上法國大腦與
當英倫貴族遇上法國大腦與美式肌肉:Tannoy Dimension 經典重生
Sharkwire鯊魚 Genesis 創世紀保險絲:打通器材任督二脈!無法淺嘗輒止的極致電流鍊聲術
Sharkwire鯊魚 Genesis 創
Sharkwire鯊魚 Genesis 創世紀保險絲:打通器材任督二脈!無法淺
MadVR Labs 全新體驗中心 —— 與 StormAudio 攜手打造「家庭劇院的終極巔峰」
MadVR Labs 全新體驗中心
MadVR Labs 全新體驗中心 —— 與 StormAudio 攜手打造「家庭劇

聯絡我們| 問題反映| 小黑屋| 手機版| Archiver|  本網站特別聘請 蔡家豪律師 為本站法律顧問

快速回覆 返回頂部 返回列表