查看: 7344|回覆: 17
收起左側

更新!請教3.8M*4.8M 五坪多的空間問題(已附正確平面圖)

[複製連結]

發表於 2013-3-13 22:34:16 | 顯示全部樓層 |閱讀模式

馬上註冊,結交更多好友,享用更多功能,讓你輕鬆玩轉社區。

您需要 登錄 才可以下載或查看,沒有賬號?註冊

x
本文章最後由 franklin0311 於 2013-3-28 12:00 編輯

大家好
家中有一地下室,最近會重新整理,規劃成獨立視聽室  
但因為格局有點奇怪,想請教各位該怎麼處理   
長度是確定的,大約4.9M左右  
高度大約是2.85M
現在苦惱的是寬度  
大家可以看圖,地下室原本的寬度是3.8M左右   
但其實我也有考慮把內牆打掉(當初不知道為什麼會這麼設計)
拓寬到外牆部分  
這樣室內寬度可以達到約4.7-4.8M   
整個空間也會比較大  
但考量到黃金比例的部分  
原本寬度3.8M,應該會比較理想   
若是拓寬出去,整體空間會像正方形  
我擔心駐波、殘響問題,會比較難處理   
大家覺得要維持現有的空間還是打掉內牆讓空間大一點呢?
PS:右下角的部分是樓梯下,會佔用一點空間
視聽室平面圖.jpg

發表於 2013-3-14 00:34:16 | 顯示全部樓層
如果預算許可建議打掉
駐波問題在小空間一定會有
也有機會解決大部分
但是越寬的兩側牆會有更彈性的喇叭擺位調整空間
更有機會獲得更寬的音場,更輕鬆的聲音
這是窄空間很難得到的

評分

參與人數 1名聲 +10 精幣 +10 收起 理由
sam + 10 + 10 我很贊同

查看全部評分

回覆

使用道具 舉報


發表於 2013-3-14 00:48:59 | 顯示全部樓層
小弟是建議 如不影響結構強度的話 內牆可以打掉做成 器材櫃 軟體櫃 和吧檯櫃
較不直接影響比例問題 也可以做一些調音手法 讓空間比較有輕鬆感
類似福井晴明的 墨劇 風格 feature_1269400374_image1_1.jpg
只是樓梯較麻煩會吃掉部分空間高度 會影響喇叭的架設問題


評分

參與人數 1名聲 +10 收起 理由
sam + 10 我很贊同

查看全部評分

回覆

使用道具 舉報


 樓主| 發表於 2013-3-14 07:39:50 | 顯示全部樓層
zardwin 發表於 2013-3-14 00:34
如果預算許可建議打掉
駐波問題在小空間一定會有
也有機會解決大部分

zardwin兄,在別篇文章看到您是台南人?
我也是台南人,之後有機會可以交流請教您一些問題 ^^     
感謝您的建議  
我想還是打掉內牆,再靠兩側貼一些纖維棉、岩棉之類的來補強好了
回覆

使用道具 舉報


 樓主| 發表於 2013-3-14 07:47:35 | 顯示全部樓層
雷奧 發表於 2013-3-14 00:48
小弟是建議 如不影響結構強度的話 內牆可以打掉做成 器材櫃 軟體櫃 和吧檯櫃
較不直接影響比例問題 也可以 ...

感謝雷兄   
原本我的規劃  
是在下方那排,做成軟體櫃或置物櫃之類的  
這樣剛好彌補右下角樓梯佔用的一些高度空間
兩側的話,可能採用吸音之類的器材,再搭配厚絨布   
不過您提供的圖,這樣規劃也不錯  
有置物櫃等可以放東西 ^^  
目前就等確定簽約後,請設計師把詳細平面圖給我  
到時候詳細尺寸就會更清楚了
回覆

使用道具 舉報


發表於 2013-3-15 00:29:13 | 顯示全部樓層
如果可以搭配現場照片!會更容易明了,我個人也建議將內牆打掉,
增加空間喇叭擺位調整性更高,左右兩側牆做高櫃可擺放BD及收納作用,
必免正方形空間,行成駐波!
回覆

使用道具 舉報


發表於 2013-3-15 02:09:14 來自手機 | 顯示全部樓層
本文章最後由 zardwin 於 2013-3-15 03:15 編輯
franklin0311 發表於 2013-3-14 07:39
zardwin兄,在別篇文章看到您是台南人?
我也是台南人,之後有機會可以交流請教您一些問題 ^^     
感謝 ...

franklinkakeu
您二位的空間相似度頗高,請容許弟擇一回復

若預算許可的話,釘角材塞2~3層(5cm/層)的岩綿或玻璃綿
是非常有效且美觀的方法,
15公分厚的岩綿或玻璃綿在125~5000Hz間的吸收率都接近1,
是非常好的吸音材料(以吸音性能和價格來說)
吸音不怕多,怕吸不均勻。
用不知道吸收頻率範圍的產品,是相當危險的,有可能越吸越不均衡。
若使用吸音頻率均衡寬廣的材質,不用怕在小空間會吸過頭。
套句友站ken兄的話,吸音綿不是黑洞,不會自動把聲音吸過去。
只有聲音經過的地方才有被吸收的可能。
所以我會建議吸音面積至少佔兩側牆面積的1/3以上。
尤其是由左右側喇叭在右牆的第一反射點間的區域一定要涵蓋到,以此類推。

我自己的空間只有四坪,使用這樣的方法聲音得到非常大的改善。
消除掉空間中雜亂的反射音後,細節會凸顯出來,
定位及樂器分離度會好"非常"多。
100Hz以上大部分駐波被消除後,(是,我不認為100Hz以上的駐波無解,
也不怕正方形空間駐波會更厲害)
聲音會平衡很多,馬上可聽見的好處是低頻快速有力,高音不尖,
連聽流行歌曲都可以聽到欲罷不能,因為節奏和歌曲的律動,
歌手的感情(中頻細節)都出來了。

擔心麻煩嗎
我只能說不過這一關,
音響路很容易掉入換機的無間地獄,
而且不知道自己要的是什麼。

若是不想裝潢但有DIY的精神和毅力的話,DIY吸音板可以玩。
我就是這一型的,所以我用下班小孩睡了以後的零碎時間,
前前後後幾個月來diy吸音板,調整擺位
以我不是很優的材料來源(網購、b&q)
成本大約一塊(60x120cm)台幣800-1000元

預算不是問題但不想裝潢
有很多市售的吸音板可考慮realtrap,auralex等等
重要的是要付測試結果確認是否是合用的吸音頻段

沒有DIY的條件,
DRC/DSP (digital room correction)大概是僅存的solution。

玩音響十多年,
深深覺得這兩年開始玩空間後才真正有進步,正本清原。
為什麼空間造成的問題,要靠換器材去修正?
那這些器材換到空間問題小的空間表現會正常嗎?

音響同好很少,同在台南希望能多多交流
回覆

使用道具 舉報


發表於 2013-3-15 04:18:43 | 顯示全部樓層
請教一下~
地下室外牆為何有窗戶~有對外嗎~
小弟比較不傾向打掉~
理由有三~
1.如果窗戶有對外~
一道磚牆或RC牆至少可以隔絕40dB以上的噪音~(窗戶跟右側門和樓梯先不論)
不管劇院還兩聲道~
這40dB具有超過想像的重要性~
2.120Hz以下的駐波不是很容易解決的~
如果打掉在35,70,105附近的駐波沒有您想像的好解決~
不管試聽的位置在哪~
3.因為是地下室相信擺放的東西也不會太多~
那中高音RT60相對會比較長~
在低音有駐波~RT60又長的情況下~
如果喜歡被駐波按摩的人還OK~
不然的話最好三思而後動~
當然以上論點不一定適合您~
回覆

使用道具 舉報


發表於 2013-3-15 19:55:29 | 顯示全部樓層
非常同意TEHWA兄
100Hz以下的駐波相當難處理乾淨!

但是若退一步想,若只要在聆聽位置附近聽不到駐波就好,
倒也不見得有想像中這麼難。

35Hz這一個駐波不管如何處理效果都不佳,還要花費大量的材料/空間,
所幸這個頻率的壞處並不明顯(鮮少音樂有到這頻率,人耳在這頻率靈敏度也不好)
所以建議可以不處理。

70Hz這個頻率是重點,但是可以利用波之破壞性干涉特性消除之。
比如這個例子中70Hz的波長為4.9m,
半波長約為2.45m。
利用直接音和反射音的行程差為2.45m,可以使其波峰和波谷疊加而相消減弱。
具體的作法是讓低音單體距喇叭背牆2.45/2=1.22m,
因此背牆的反射音和喇叭直接音到達聆聽位置前正好會相消。

100Hz可以用厚岩棉/玻璃棉吸收,
輔以類似70Hz的處理方式(利用別面牆或是利用聆聽位置和其後牆的距離處理之)
此方法在我4.8x2.8的小空間相當有用,
但是還沒在方形的空間試過。
理論上方形的各駐波能量會加倍,
此種方式的效果可能要請有經驗的人現身說法囉...
回覆

使用道具 舉報


 樓主| 發表於 2013-3-15 20:34:27 | 顯示全部樓層
TEHWA 發表於 2013-3-15 04:18
請教一下~
地下室外牆為何有窗戶~有對外嗎~
小弟比較不傾向打掉~

其實這邊地基整個大概是有墊高吧  
所以地下室的上半部,大概是等於外面的半層樓高吧。   
地下室內牆跟外牆靠近天花板附近的相同位置,都各有一扇窗
外牆的窗戶是有對外的,可以從外面引進新鮮的空氣,經由內牆的窗戶傳進室內  
這樣的設計可能是想讓地下室的空氣好一點  
這個地下室外牆面對的是馬路,馬路另一邊是公園   
所以噪音問題應該不會影響太大   
至於您說的120Hz以下的駐波跟中高音RT60  
這我得再請教大家了,看有什麼方法可以避免了   
非常感謝您的意見  
小弟受教了
回覆

使用道具 舉報


發表於 2013-3-15 20:45:30 | 顯示全部樓層
我的猜測啦:

地下室有這種隔局,應該是開窗的部分是在地面上,這個地下室不是全都在地面下,大約有八成是在地下,開窗是為了通風和採光,會隔內牆,可能是為了防洪防潑水。

一般學校的地下室也都會作這樣的設計,避免陰暗潮溼且兼顧採光的功能,在南部陽光普照的環境更好。

我家也有地下室,大小也是約十坪左右,我本來也有想把音響室從二樓移到地下室去,不過很怕地下室會潮溼發霉,而且我家地下室沒有通風設計,空氣循環方面要花很大的工夫,再來就是被前年的八八水災嚇到,我家附近全都淹水三十公分,只有我家這排三家幸免於難,都只淹到門口,不過也是冒一身冷汗就是了。

回主題來,如果確定內牆是為了防洪用,那要打掉的話,最好把那個採光窗戶用氣密窗封死,比較保險,再來就是四面牆都再作一層防水,我家有重作過,效果很好,也比較心安。

回覆

使用道具 舉報


發表於 2013-3-18 03:15:11 | 顯示全部樓層
本文章最後由 TEHWA 於 2013-3-20 04:57 編輯

地下室因四周牆壁堅硬~
又沒空間宣洩~
低頻反射能量極高~
正方型空間能閃則閃~
SP設在1/4波長處只能影響基頻~
不會改變倍頻駐波或殘響時間~
但這種空間更難處理的是頻率的凹陷~
山峰易移峽谷難填~
如果真的要打牆壁~
那就只能擺菱形的~
當然這是猜測~
沒測過天知道~
回覆

使用道具 舉報


發表於 2013-3-18 07:32:00 | 顯示全部樓層
本文章最後由 zardwin 於 2013-3-18 10:19 編輯
TEHWA 發表於 2013-3-18 05:16
SP或座位設在1/4波長處只能影響音壓大小~
這邊有點講錯了~
應該只會影響該波長的奇數倍頻率~
不好意思弟可能沒有表達清楚
喇叭放置1/4處處理的只有70Hz單一頻率,任何倍頻的半波長都不一樣無法一併處理。
弟的作法是100Hz以上以吸音板被動處理為主

回覆

使用道具 舉報


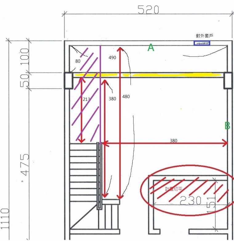
 樓主| 發表於 2013-3-27 21:30:56 | 顯示全部樓層

請教五坪多的空間問題(已附正確平面圖)

本文章最後由 franklin0311 於 2013-3-27 21:49 編輯

接洽的設計師給了這一張原始平面圖  
這樣規劃起來更有概念了  
(原本我自己畫的圖,跟實際上實在差太多 XD 果然還是要交給專業的來畫)  
我看了平面圖和實地對照  
發現更改方向,似乎更為理想?
空間說明:
位於地下室
右下角是有一個突出的小空間,原本放一些雜物跟水塔  
但為了空間的完整,會計畫將水塔往外移動
把那個空間縮小約一半,打掉磚牆以便跟左方切齊。
左下角是樓梯下的斜空間,原本畫的實在差太多,
實際上佔用的空間還不小
樓梯寬度佔用約110cm,"長度"佔用約167cm  
黃色條是內牆,可以打掉增加室內空間

規劃1:
原本我規劃布幕放在B牆
樓梯下的空間延伸到內牆處(或打掉內牆繼續延伸到外牆處)
規劃是放器材或設計櫃子之類的  (紫色斜線處)
座椅則放在櫃子前面一點  
不過這樣的規劃,後環繞喇叭可能不好擺放
規劃2:   
今天看了平面圖,發現如果換個方向,感覺好像更不錯
布幕放在A位置
左側空間(紫色斜線處)一樣設計器材櫃等   
這樣的空間感覺比較完整,後環繞喇叭擺放比較容易  
只是左側側牆跟右側RC牆的材質會不相同
音場不知道會不會不平衡      
規劃3:
一不作二不休,
將樓梯下延伸出去的那塊空間(紫色斜線部分),用磚牆封起來
讓左右側牆都是RC磚牆  
整體空間變成很完整的長方形 長480cm 寬380cm   

誠心請教大家,請各位多多指點   
如果有其他規劃,有別於規劃1、2、3 都歡迎提出
希望能夠讓這不完美的空間能有最好的設計利用   
謝謝大家!
視聽室平面圖.jpg



回覆

使用道具 舉報


 樓主| 發表於 2013-3-29 08:08:13 | 顯示全部樓層
都沒有人回覆 ><
是因為這個空間太難處理嗎?
左右不對稱、加上不完整的空間
雖然有獨立空間可規劃
但還是讓我頭痛呀!
回覆

使用道具 舉報


發表於 2013-3-30 00:07:14 | 顯示全部樓層
牽扯到泥做隔空抓藥是有風險的~
可以的話附個照片讓大家看看~
但最終還是要自己決定~
回覆

使用道具 舉報


 樓主| 發表於 2013-3-31 14:41:42 | 顯示全部樓層
TEHWA 發表於 2013-3-30 00:07
牽扯到泥做隔空抓藥是有風險的~
可以的話附個照片讓大家看看~
但最終還是要自己決定~ ...

我找時間來拍幾張
不過因為還有裝潢,所以可能沒有全部拆完來的準確  
回覆

使用道具 舉報


 樓主| 發表於 2013-3-31 15:07:17 | 顯示全部樓層
本文章最後由 franklin0311 於 2013-3-31 15:13 編輯

有好心網友幫我畫了幾張模擬圖  
請大家看看
我覺得第一張圖還不錯,這想法應該可行,
藉由兩邊側牆、前後鋪上吸音棉等材質  
把空間由原本高寬長285*380*480變成約275*344*440 這樣比例就差不多符合黃金比例之一的1:1.25:1.6   
左邊那塊空間就用4吋磚隔起來,裡面的狹長小空間可以看是放雜物或做一些置物櫃收藏硬碟等
樓梯間的下方空間開個小門進出。
不知道大家還有沒有其他想法?請不吝指教 ^^  
1.


2.


3.








回覆

使用道具 舉報

您需要登錄後才可以回文 登入 | 註冊

本版積分規則

熱門推薦

MadVR Labs 全新體驗中心 —— 與 StormAudio 攜手打造「家庭劇院的終極巔峰」
MadVR Labs 全新體驗中心
MadVR Labs 全新體驗中心 —— 與 StormAudio 攜手打造「家庭劇
風暴EVO AoIP/帝瓦雷Phantom 7.0.4金蛋客廳劇院建構歷程心得  - 發燒友Phil Lee分享
風暴EVO AoIP/帝瓦雷Phant
風暴EVO AoIP/帝瓦雷Phantom 7.0.4金蛋客廳劇院建構歷程心得 -
南臺灣藝文之都的B&W Nautilus鸚鵡螺/StormAudio風暴7.2.1.6多聲道視聽室開箱!
南臺灣藝文之都的B&W Naut
南臺灣藝文之都的B&W Nautilus鸚鵡螺/StormAudio風暴7.2.1.6多聲
25年專業劇院路終遇驚喜美麗新天地 - 新店李師傅Storm Audio風暴Core16客廳5.4.6開箱!
25年專業劇院路終遇驚喜美
25年專業劇院路終遇驚喜美麗新天地 - 新店李師傅Storm Audio風暴
當英倫貴族遇上法國大腦與美式肌肉:Tannoy Dimension 經典重生記
當英倫貴族遇上法國大腦與
當英倫貴族遇上法國大腦與美式肌肉:Tannoy Dimension 經典重生

聯絡我們| 問題反映| 小黑屋| 手機版| Archiver|  本網站特別聘請 蔡家豪律師 為本站法律顧問

快速回覆 返回頂部 返回列表