查看: 6112|回覆: 8
收起左側

[求助] 請問視聽室的設計

[複製連結]

發表於 2013-1-14 11:57:26 | 顯示全部樓層 |閱讀模式

馬上註冊,結交更多好友,享用更多功能,讓你輕鬆玩轉社區。

您需要 登錄 才可以下載或查看,沒有賬號?註冊

x
不好意思
最近新家已經進入裝潢的階段
當時在蓋的時候
就已經有規劃視聽室的空間
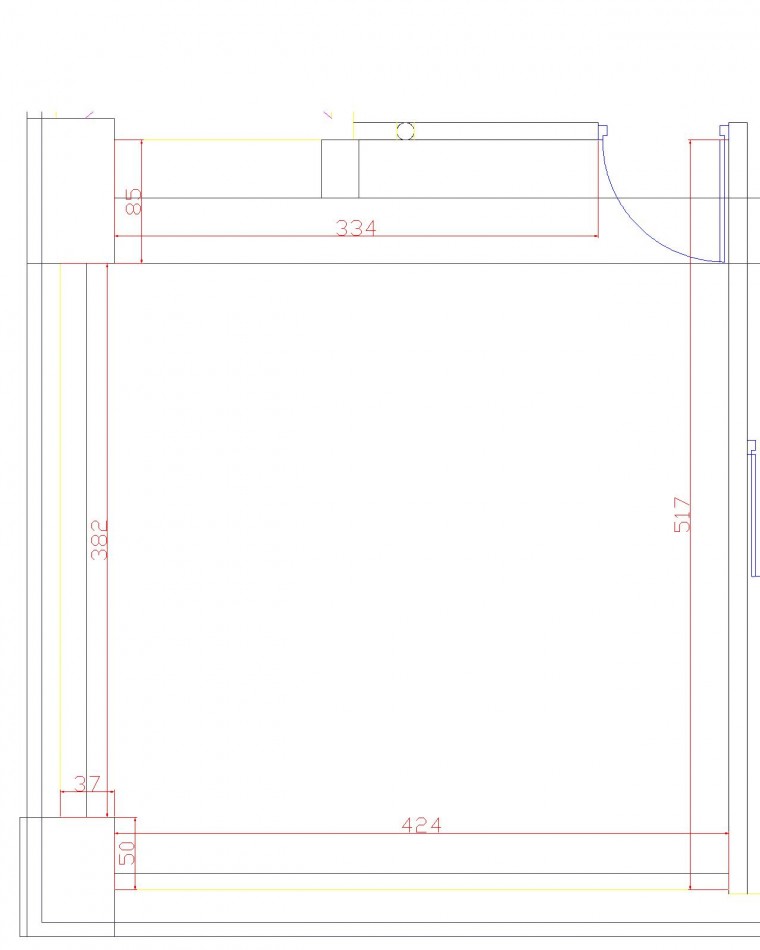
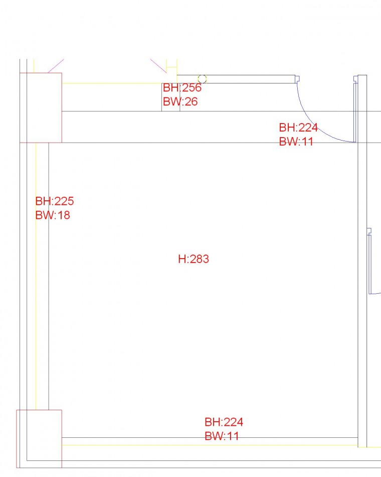
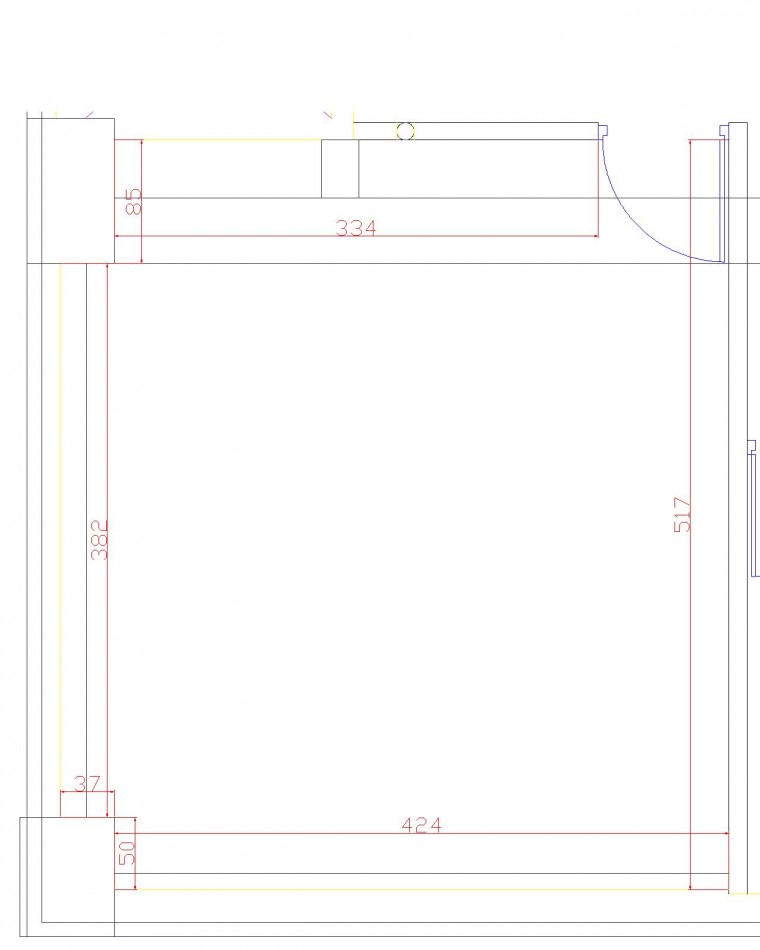
下面是空間的資料
比較麻煩的是靠近門的地方有一隻高度只有224cm的大樑
銀幕放在424cm那個位置
打算用固定幕
有拉一套專屬的地線以及由總電源箱拉一條電源專線過來(想申請一顆獨立表,不過被財務大臣否決)
因為在地下室,不與隔壁住家相接,也沒窗戶
可以不考慮擾鄰的問題(叫破喉嚨跟重低音開到極限也沒人知道...)
隔音門還沒挑選安裝
不過因為位在地下室
有考慮鋪防水補再架高地板...
如果再382cm那邊做一整面的CD及影片的架子
會不會不太適合??
不好意思,麻煩大家指導了...

B1.jpg
b1-1.jpg






發表於 2013-1-19 01:39:55 | 顯示全部樓層
可以直上120吋的固定幕,cd架跟收納層版的部份儘量放在後方(您應該不會直接貼著牆坐),如果是使用投影機的話,怕cd架會反光影響視聽,在視覺上也比較舒服。
回覆

使用道具 舉報


 樓主| 發表於 2013-1-19 11:13:37 | 顯示全部樓層
了解...感謝小許大的解答.......
不好意思,想再請教一下...
投影布幕旁邊的柱子
是否會建議弄成圓柱形,來讓聲音反射效果比較好呢?(另一邊沒柱子的牆面也會做成對稱的)
目前看到許多綜擴已經支援9.1ch,若選擇透聲幕,將喇叭放在布幕後面
這樣日後會不會不好更換
目前也在思考是要將設備放在布幕下方,或是在旁邊弄一個機櫃堆疊起來
還蠻傷腦筋的...
回覆

使用道具 舉報


發表於 2013-1-20 02:15:08 | 顯示全部樓層
不建議再包成圓柱型,直接留實牆即可。
能不用透聲幕就不要用透聲幕~
回覆

使用道具 舉報


發表於 2013-1-21 10:57:03 | 顯示全部樓層
小許 發表於 2013-1-20 02:15
不建議再包成圓柱型,直接留實牆即可。
能不用透聲幕就不要用透聲幕~

請問透聲布與其他差異?
回覆

使用道具 舉報


發表於 2013-1-21 17:35:29 | 顯示全部樓層
小許大請問為什麼不建議用透聲幕
回覆

使用道具 舉報


發表於 2013-10-16 11:00:09 | 顯示全部樓層
本文章最後由 小許 於 2013-10-16 11:00 編輯

我這也有透聲幕,
不過如果空間允許不建議使用。根據經驗!
透聲幕=編織幕~打到150吋,晶格一定很粗~
畫質絕對會損失不少,如果使用透聲幕喇叭勢必會放在布幕後面~
這樣子的音質也會損失不少該有的效果。
而150"規劃會其實是災難的開始,亮度不夠畫質更別談,
家用很多規劃到135"(新機時也許還行,但前題是遮光要好)但是燈泡穩定後就已經不太行了。
現階段的技術透聲幕存在的問題實在不少,真正比較過看過透聲幕與一般幕的畫質跟音質後再考慮也不遲。
回覆

使用道具 舉報


發表於 2013-10-16 12:07:31 | 顯示全部樓層
先別說透聲幕了
樓主試試喇叭網罩有沒裝的情形下
聽看看聲音有沒有差
聽不出來再來考慮透聲幕吧

評分

參與人數 1名聲 +50 精幣 +20 收起 理由
真平 + 50 + 20 這個簡單測試非常棒,可以破除迷思.

查看全部評分

回覆

使用道具 舉報


發表於 2013-10-16 14:31:02 | 顯示全部樓層
soujirou 發表於 2013-10-16 12:07
先別說透聲幕了
樓主試試喇叭網罩有沒裝的情形下
聽看看聲音有沒有差

有趣的實驗~其實大家都可以回家試看看!
回覆

使用道具 舉報

您需要登錄後才可以回文 登入 | 註冊

本版積分規則

熱門推薦

MadVR Labs 全新體驗中心 —— 與 StormAudio 攜手打造「家庭劇院的終極巔峰」
MadVR Labs 全新體驗中心
MadVR Labs 全新體驗中心 —— 與 StormAudio 攜手打造「家庭劇
風暴EVO AoIP/帝瓦雷Phantom 7.0.4金蛋客廳劇院建構歷程心得  - 發燒友Phil Lee分享
風暴EVO AoIP/帝瓦雷Phant
風暴EVO AoIP/帝瓦雷Phantom 7.0.4金蛋客廳劇院建構歷程心得 -
南臺灣藝文之都的B&W Nautilus鸚鵡螺/StormAudio風暴7.2.1.6多聲道視聽室開箱!
南臺灣藝文之都的B&W Naut
南臺灣藝文之都的B&W Nautilus鸚鵡螺/StormAudio風暴7.2.1.6多聲
25年專業劇院路終遇驚喜美麗新天地 - 新店李師傅Storm Audio風暴Core16客廳5.4.6開箱!
25年專業劇院路終遇驚喜美
25年專業劇院路終遇驚喜美麗新天地 - 新店李師傅Storm Audio風暴
當英倫貴族遇上法國大腦與美式肌肉:Tannoy Dimension 經典重生記
當英倫貴族遇上法國大腦與
當英倫貴族遇上法國大腦與美式肌肉:Tannoy Dimension 經典重生

聯絡我們| 問題反映| 小黑屋| 手機版| Archiver|  本網站特別聘請 蔡家豪律師 為本站法律顧問

快速回覆 返回頂部 返回列表