|
|

樓主 |
發表於 2010-9-26 14:41:37
|
顯示全部樓層
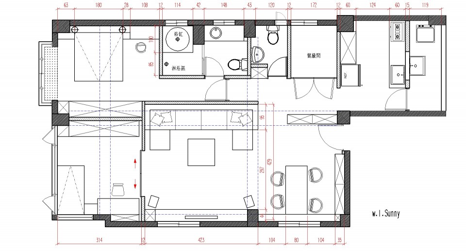
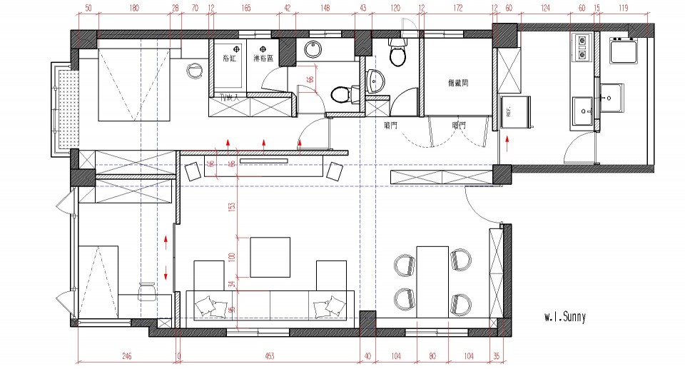
9/26 進度更新
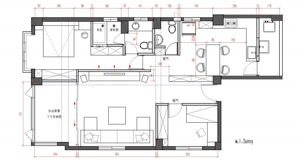
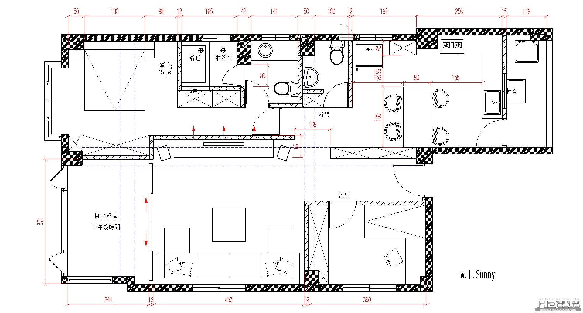
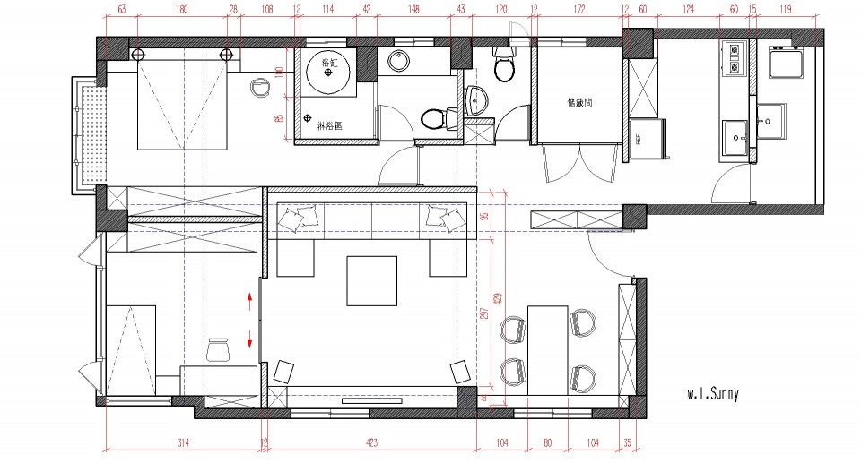
整理需求表 如下
01. 浴室要有浴缸、乾溼分離、免治馬桶座的電源、浴室乾燥暖風機、浴櫃(或是可以收納東西的地方 吹風機、刮鬍刀、電動牙刷...,etc)、相關用品的電源
02. 冷氣希望以壁掛為主但為了美觀客廳可以使用吊隱
03. 小孩房目前以放置衣櫃為主,在沒有小孩前可以當作多功能房,壁面是否有容易清潔的方案?(以後小孩說不定會不會塗鴉弄髒,那面用烤漆玻璃是否安全?)
04. 廚房為了方便清洗考慮用烤漆玻璃,廚房那扇窗是否要封? 廚房排油煙機出風口需要更改
05. 小陽台未來會做隔柵把那個角補平,內部是否建議要做窗戶? 洗衣機以及洗衣台位置.. 以及是否順手? 熱水洗衣的可行性?
06. 電器櫃的容納量? 烤箱、電鍋、微波爐、咖啡機、飲水機...,etc 是否容易取用? 碗盤筷櫃的位置?
07. 貓的安置位置? 貓砂盆(味道的考量..?)
08. 大型電器的收納位置(儲物室、櫃?) 風扇、吸塵器、掃把、掃地機器人..,etc )
09. 換季衣物、換季棉被的收納位置..,etc)
10. 客浴的空間問題(如果改善客浴跟餐廳的不協調性、窗戶卡邊的問題、以及要塞一個淋浴)
11. 客廳是否需要吧檯?
12. 收納空間的問題,目前規劃看起來櫃子不是很多,以後的收納性?
13. 有角的邊希望改成圓弧(安全考量)
14. 緊急照明? 是否有辦法藏在天花上面?
15. 需安裝全熱交換器,需考量4"風管的動線以及不穿樑為原則
16. 整間房子的插座數需求量大,且須順手
17. 希望一切以便利及舒適為主要考量
18. 踢腳板?
19. 主臥室需要有電視,但又希望不要因為電視減少太多收納..
20. 放置鑰匙、手機充電、小雜物的地方(大門附近?)
21. 網路孔、電視孔、電話孔安置的位置..?
22. 客廳設備的安放位置? 以及投影、喇叭的走線、擺設
23. 所有線路(電力、弱電)要以後還有抽換的功能..
再幫我想想吧 :P |
|